Skip to content
Projekte
Über uns
Kontakt
Menu
Projekte
Über uns
Kontakt
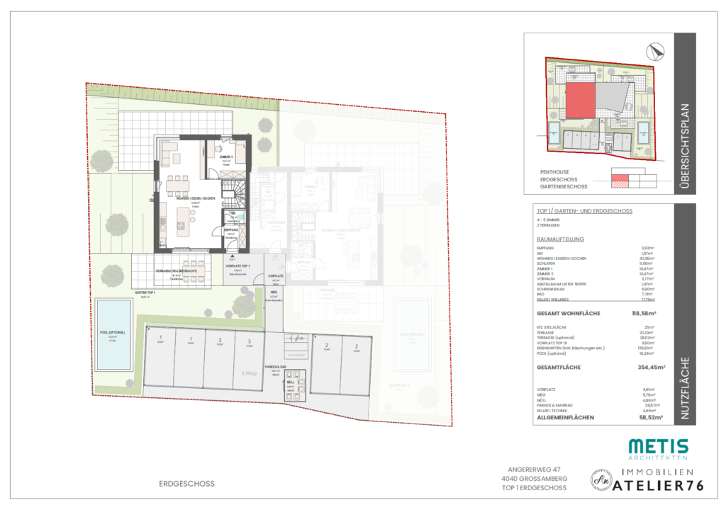
Mehrfamilienhaus am Pöstlingberg
Mehrfamilienhaus am Pöstlingberg
3 Maisonette Wohneinheiten über 3 Geschoße
Bauträger Atelier76